Описание продукта
Корпуса подшипников играют чрезвычайно важную роль в конструкции роликов, используемых в
ленточных конвейерах. Они отвечают за стабильную посадку подшипников качения и
защиту от загрязнений, влаги или пыли, что напрямую влияет на долговечность всей транспортной системы.
В JOLA s.c. мы производим точные корпуса подшипников, которые отвечают техническим требованиям даже
самых требовательных отраслей.
Наше предложение включает:
- стальные и штампованные корпуса, адаптированные к конструкции роликов,
- производство на основе технической документации клиента
- возможность обработки в соответствии с требуемыми допусками.
Благодаря современному машинному парку и строгому контролю качества, наши компоненты обеспечивают:
- высокую износостойкость,
- точность монтажа,
- долговечность даже в экстремальных условиях работы.
Свяжитесь с нами, если вам нужны
надежные корпуса подшипников для ленточных конвейеров – мы проконсультируем и изготовим
компоненты, полностью соответствующие вашим
ожиданиям.
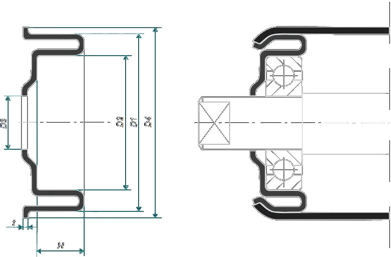
Корпус подшипника тип PKA – технический чертеж
Техническая спецификация PKA
| Тип |
D1 (мм) |
D2 (мм) |
D3 (мм) |
H (мм) |
t (мм) |
| PKA 63,5×3,2-4,0/6204 |
59 |
47 |
24 |
29 |
2,0 |
| PKA 60,3×2,0/6204 |
57 |
47 |
24 |
38 |
2,0 |
| PKA 76×3,2-4,0/6204 |
71,5 |
47 |
24 |
38 |
2,0 |
| PKA 76×3,2-4,0/6205 |
71,5 |
52 |
29 |
38 |
2,0 |
| PKA 76×3,2-4,0/6206-6305 |
71,5 |
62 |
34 |
43 |
2,0 |
| PKA 89×3,2-4,0/6204 |
84 |
47 |
24 |
38 |
2,0 |
| PKA 89×3,2-4,0/6205 |
84 |
52 |
29 |
38 |
2,0 |
| PKA 89×3,2-4,0/6206-6305 |
84 |
62 |
34 |
43 |
2,0 |
| PKA 108×3,2-4,0/6204 |
102,5 |
47 |
24 |
38 |
2,0 |
| PKA 108×3,2-4,0/6205 |
102,5 |
52 |
29 |
38 |
2,0 |
| PKA 108×3,2-4,0/6206-6305 |
102,5 |
62 |
34 |
43 |
2,0 |
| PKA 133×3,2-4,0/6204 |
127 |
47 |
24 |
38 |
2,0 |
| PKA 133×3,2-4,0/6205 |
127 |
52 |
29 |
38 |
2,0 |
| PKA 133×3,2-4,0/6206-6305 |
127 |
62 |
34 |
43 |
2,0 |
Корпус подшипника тип PKA – технический чертеж
Техническая спецификация PKA 4,0-6,0 мм
| Тип |
D1 (мм) |
D2 (мм) |
D3 (мм) |
H (мм) |
t (мм) |
| PKA 108/6206-6305/4,0 |
~115 |
62 |
34 |
43 |
4,0 |
| PKA 108/6306/4,0 |
~110 |
72 |
34 |
44 |
4,0 |
| PKA 108/6307/4,0 |
~110 |
80 |
45 |
48 |
4,0 |
| PKA 108/6308/4,0 |
~110 |
90 |
46 |
52 |
4,0 |
| PKA 133/6308/4,0 |
~130 |
90 |
46 |
52 |
4,0 |
| PKA 133/6308/5,0 |
~130 |
90 |
64 |
60 |
5,0 |
| PKA 159/6308/5,0 |
~155 |
90 |
64 |
60 |
5,0 |
| PKA 159/6310/6,0 |
~155 |
110 |
85 |
61 |
6,0 |
| PKA 194/6310/6,0 |
~188 |
110 |
85 |
61 |
6,0 |
Корпус подшипника тип PKB – технический чертеж
Техническая спецификация PKB
| Тип |
D1 (мм) |
D2 (мм) |
D3 (мм) |
H (мм) |
t (мм) |
| PKB 80×3,0-3,2/6204 |
74,3 |
47 |
27 |
36 |
2,0 |
| PKB 89×2,9/6204 |
83,6 |
47 |
27 |
36 |
2,0 |
| PKB 89×4,0/6204 |
81,3 |
47 |
27 |
36 |
2,0 |
| PKB 89×3,2-4,0/6204 |
84 |
47 |
24 |
38 |
2,0 |
| PKB 108×3,6-4,0/6204 |
102,5 |
47 |
24 |
38 |
2,0 |
| PKB 108×3,0-3,2/6204 |
103,5 |
47 |
24 |
38 |
2,0 |
| PKB 127×3,2-4,0/6204 |
121 |
47 |
24 |
38 |
2,2 |
| PKB 133×3,0-3,2/6204 |
128 |
47 |
24 |
38 |
2,2 |
| PKB 133×3,2-4,0/6204 |
127 |
47 |
24 |
38 |
2,2 |
| PKB 89×3,2-4,0/6205 |
83,6 |
52 |
33 |
43 |
2,0 |
| PKB 108×3,2-4,0/6205 |
102,5 |
52 |
29 |
43 |
2,0 |
| PKB 133×3,2-4,0/6205 |
127 |
52 |
29 |
43 |
2,2 |
| PKB 89×3,2/6206-6305 |
85 |
62 |
34 |
43 |
2,0 |
| PKB 89×3,2-4,0/6206-6305 |
84 |
62 |
34 |
43 |
2,0 |
| PKB 108×3,0-3,2/6206-6305 |
103,5 |
62 |
34 |
43 |
2,0 |
| PKB 108×3,2-4,0/6206-6305 |
102,5 |
62 |
34 |
43 |
2,2 |
| PKB 127×3,2-4,0/6206-6305 |
121 |
62 |
34 |
43 |
2,0 |
| PKB 133×3,0-3,2/6206-6305 |
128 |
62 |
34 |
43 |
2,2 |
| PKB 133×3,2-4,0/6206-6305 |
127 |
62 |
34 |
43 |
2,2 |
| PKB 159×3,2-4,0/6206-6305 |
153 |
62 |
34 |
43 |
2,5 |
Корпус подшипника тип PKZ – технический чертеж
Техническая спецификация PKB 4,0 мм
| Тип |
D1 (мм) |
D2 (мм) |
D3 (мм) |
H (мм) |
t (мм) |
| PKB 133/6206-6305/4,0 |
127 |
62 |
34 |
43 |
4,0 |
| PKB 133/6306/4,0 |
127 |
72 |
34 |
44 |
4,0 |
| PKB 133/6307/4,0 |
127 |
80 |
45 |
48 |
4,0 |
| PKB 159/6206-6305/4,0 |
153 |
62 |
34 |
43 |
4,0 |
| PKB 159/6306/4,0 |
153 |
72 |
34 |
44 |
4,0 |
| PKB 159/6307/4,0 |
153 |
80 |
45 |
48 |
4,0 |
| PKB 159/6308/4,0 |
153 |
90 |
46 |
52 |
4,0 |
Корпус подшипника тип PKBB – технический чертеж
Техническая спецификация PKBB
| Тип |
D1 (мм) |
D2 (мм) |
D3 (мм) |
H (мм) |
t (мм) |
| PKBB 89×2,9/6204 |
~82,2 |
47 |
21 |
36 |
1,5 |
| PKBB 89×3,2/6204 |
~83,1 |
47 |
27 |
36 |
2,0 |
| PKBB 89×3,6/6204 |
~82,2 |
47 |
27 |
38 |
2,0 |
| PKBB 89×3,2-3,6/6204 |
~83,1 |
47 |
24 |
38 |
2,0 |
| PKBB 108×3,2/6204 |
~102,1 |
47 |
24 |
38 |
2,0 |
| PKBB 108×3,6/6204 |
~101,3 |
47 |
24 |
38 |
2,0 |
| PKBB 133×3,6/6204 |
~126,3 |
47 |
24 |
38 |
2,2 |
| PKBB 133×4,0/6204 |
~125,5 |
47 |
24 |
38 |
2,2 |
| PKBB 89×3,2-3,6/6205 |
~83,1 |
52 |
33 |
43 |
2,0 |
| PKBB 108×3,2-3,6/6205 |
~102,1 |
52 |
29 |
43 |
2,0 |
| PKBB 133×3,6-4,0/6205 |
~125,5 |
52 |
29 |
43 |
2,2 |
| PKBB 89×3,2/6206-6305 |
~83,7 |
62 |
34 |
43 |
2,0 |
| PKBB 89×3,6/6206-6305 |
~83,1 |
62 |
34 |
43 |
2,0 |
| PKBB 108×3,2/6206-6305 |
~102,1 |
62 |
34 |
43 |
2,0 |
| PKBB 108×3,6/6206-6305 |
~102,1 |
62 |
34 |
43 |
2,0 |
| PKBB 133×3,6/6206-6305 |
~126,3 |
62 |
34 |
43 |
2,2 |
| PKBB 133×4,0/6206-6305 |
~125,5 |
62 |
34 |
43 |
2,2 |
| PKBB 159×3,6-4,0/6206-6305 |
~152,3 |
62 |
34 |
43 |
2,5 |
Корпус подшипника тип PKOM – технический чертеж
Техническая спецификация PKOM
| Тип |
D2 (мм) |
D3 (мм) |
D4 (мм) |
H (мм) |
t (мм) |
| PKOM 60,3×2,0/6204 |
47 |
20,5 |
59 |
15 |
1,5 |
Корпус подшипника тип PKRL – технический чертеж
Техническая спецификация PKRL
| Тип |
D1 (мм) |
D2 (мм) |
D3 (мм) |
H (мм) |
t (мм) |
| PKRL 89×2,9-3,2/6204 |
83 |
47 |
24 |
37 |
2,0 |
| PKRL 89×3,6/6204 |
82 |
47 |
24 |
37 |
2,0 |
| PKRL 108×2,9-3,0/6204 |
102 |
47 |
24 |
37 |
2,0 |
| PKRL 108×3,2-3,6/6204 |
101 |
47 |
24 |
37 |
2,0 |
| PKRL 108×4,0/6204 |
100 |
47 |
24 |
37 |
2,0 |
| PKRL 133×3,2-3,6/6204 |
126 |
47 |
24 |
37 |
2,2 |
| PKRL 133×4,0/6204 |
125 |
47 |
24 |
37 |
2,2 |